美国弗吉尼亚-KUSSHI日料
这次的项目是来自美国弗吉尼亚州雷斯顿市的KUSSHI日料店,风格主打日式高级感,在本次设计中我们希望能通过简约高级的材料与细腻合理的空间布局,打造出一个兼具日式传统氛围和现代高级感的用餐环境。













Previous Article
Next Article
interiors
小鱼 - 加拿大海鲜餐厅设计
Xiao Yu
2026-01-17 80
interiors
原山造物 - 云贵川bistro餐厅设计
Yuan Shan Origins
2026-01-09 99
interiors
鄭記麵店 - 美国西雅图牛肉面馆
Zhengji noodles
2025-11-11 269
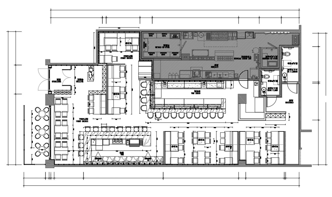
美国弗吉尼亚-KUSSHI日料
KUSSHI
Restaurant | 2025-09-29
412 文章来源:本站
这次的项目是来自美国弗吉尼亚州雷斯顿市的KUSSHI日料店,风格主打日式高级感,在本次设计中我们希望能通过简约高级的材料与细腻合理的空间布局,打造出一个兼具日式传统氛围和现代高级感的用餐环境。













Xiao Yu
2026-01-17 80
Yuan Shan Origins
2026-01-09 99
Zhengji noodles
2025-11-11 269
MUGEN
2025-10-15 343
©万致空间设计深圳有限公司 2010-2021. ALL RIGHTS RESERVED桂ICP备16006701号-3