MUGEN - 卢森堡冷翠系日料餐厅
项目名称 | MUGEN
Project Name | MUGEN
——
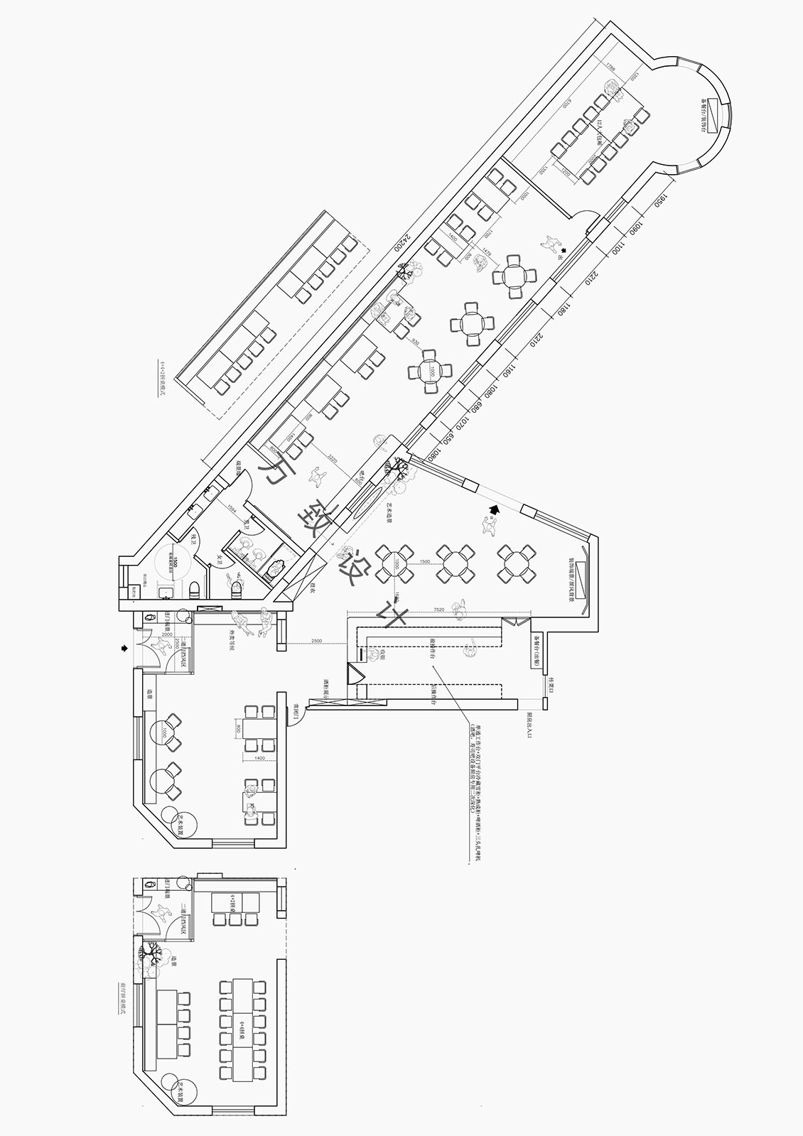
在本案设计中,我们以专业的东方美学解构能力,针对本地东方意境稀缺与高端消费需求的痛点,将自然意趣、禅意哲思与现代空间语言融合;从花鸟造型灯具、水墨艺术装置,到带金箔质感的吧台、禅意绿植造景,以差异化视觉符号串联日料与东方美学,打造可沉浸、可传播的高级用餐场景。

























Previous Article
Next Article
interiors
鄭記麵店 - 美国西雅图牛肉面馆
Zhengji noodles
2025-11-11 88
interiors
MUGEN - 卢森堡冷翠系日料餐厅
MUGEN
2025-10-15 181
interiors
美国弗吉尼亚-KUSSHI日料
KUSSHI
2025-09-29 217
MUGEN - 卢森堡冷翠系日料餐厅
MUGEN
Restaurant | 2025-10-15
180 文章来源:本站
项目名称 | MUGEN
Project Name | MUGEN
——
在本案设计中,我们以专业的东方美学解构能力,针对本地东方意境稀缺与高端消费需求的痛点,将自然意趣、禅意哲思与现代空间语言融合;从花鸟造型灯具、水墨艺术装置,到带金箔质感的吧台、禅意绿植造景,以差异化视觉符号串联日料与东方美学,打造可沉浸、可传播的高级用餐场景。

























Zhengji noodles
2025-11-11 88
MUGEN
2025-10-15 181
KUSSHI
2025-09-29 217
YIWAN
2025-08-12 227
©万致空间设计深圳有限公司 2010-2021. ALL RIGHTS RESERVED桂ICP备16006701号-3